Antes
Maquete
Maquete
Maquete
Maquete
Maquete
Maquete
Maquete
Maquete
Planta Pré-Existente
Corte Pré-Existente
Casa do Cozinheiro
Casa do Cozinheiro
Casa do Jardineiro
Casa do Jardineiro
Casa do Pianista
Casa do Pianista
left-button
right-button

Casa dos 3 Amigos

Enquadramento
Numa primeira percepção deste quarteirão detetou-se a falta de espaços abertos e verdes que deixam o local respirar. Tendo em conta este ponto de vista tomou-se iniciativa de não intervir nos espaços abertos. Como tal, a única solução a este problema seria intervir nas coberturas dos edifícios (visto que a tecnologia atual já premite tal solução). Em uma análise melhor dos edifícios atuais decidiu-se intervir no edifício em pior estado, desta forma melhorando as suas condições como o próprio aspeto do edificio.

Conjugação com a Pré - Existência
A intervenção propõe uma forma de aproveitamento da estrutura pré-existente evoluindo como caixas individuais em altura. Essa pré-existência (piso baixo) funciona como espaços comuns dos residentes para os seus ofícios como uma sala de aula para o pianista, um jardim e uma cozinha com dimensões mais alargadas devido ao seu gosto de fazer festas e convidar muita gente para sua própria casa. Assim resulta a forma de distribuir os espaços. Um ponto importante na privacidade de cada edifício é que sempre que se sobe de piso se vai subindo de privacidade de cada residente.

Espaços Comuns
Numa primeira percepção deste quarteirão detetou-se a falta de espaços abertos e verdes que deixam o local respirar. Tendo em conta este ponto de vista tomou-se iniciativa de não intervir nos espaços abertos. Como tal, a única solução a este problema seria intervir nas coberturas dos edifícios (visto que a tecnologia atual já premite tal solução). Em uma análise melhor dos edifícios atuais decidiu-se intervir no edifício em pior estado, desta forma melhorando as suas condições como o próprio aspeto do edificio.

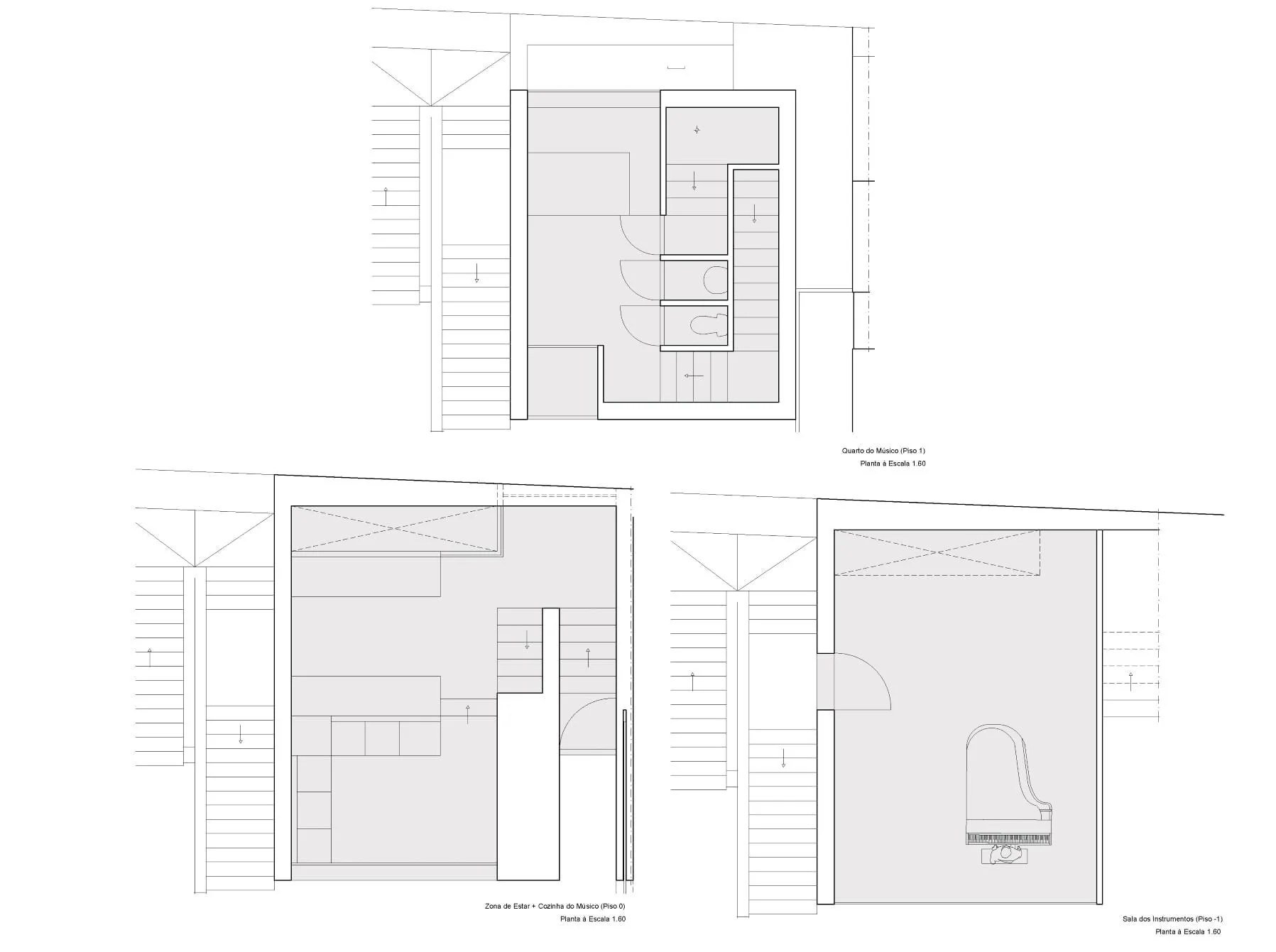
Habitação do Músico
Esta habitação como as outras contém o espaço mais comum (sala de aula/ensaio do músico) no piso baixo. Este espaço tem possibilidade de ser iluminado por duas aberturas que permite a entrada de luz zenital com abertura para o pátio de entrada e para o piso súperior que devido a esse pé-direito duplo permite a iluminação desse espaço. Essa iluminação que ilumina a sala do músico também ilumina a zona da cozinha e sala de estar que devido a um ligeiro aumento de pé-direito quem se encontra no sofá da zona de estar se sente mais confortável. O quarto do músico contém um ponto distinto que é marcado pela casa de banho que com um conjunto de degraus proporciona uma possibilidade de profundidade para encher de água até um certo nível podendo assim tomar banho mais relaxado com uma abertura no teto para poder apreciar o céu e as estrelas. Essa zona de banho também tem possibilidade de uma pessoa tomar um duche rápidocaso não queira ficar muito tempo no banho.

Habitação do Cozinheiro
No piso baixo como anteriormente referido encontra-se a parte mais pública de sua habitação ou seja a cozinha. Este espaço tem a possibilidade de se tornar mais amplo abrindo a janela que fica de frente para o pátio de entrada. Assim este espaço torna-se mais rico podendo percurrer mais livremente o espaço. Quando se sobe, deparamo-nos com um pé.-direito mais alto para criar uma entrada mais confortável que se abre para a sala. A casa de banho proporciona uma divisão de espaços que se interligam também por uma varanda que atraves de estar ao nível do quarto ( dois degraus mais alto) torna possivel a formação de um banco para a zona de estar.

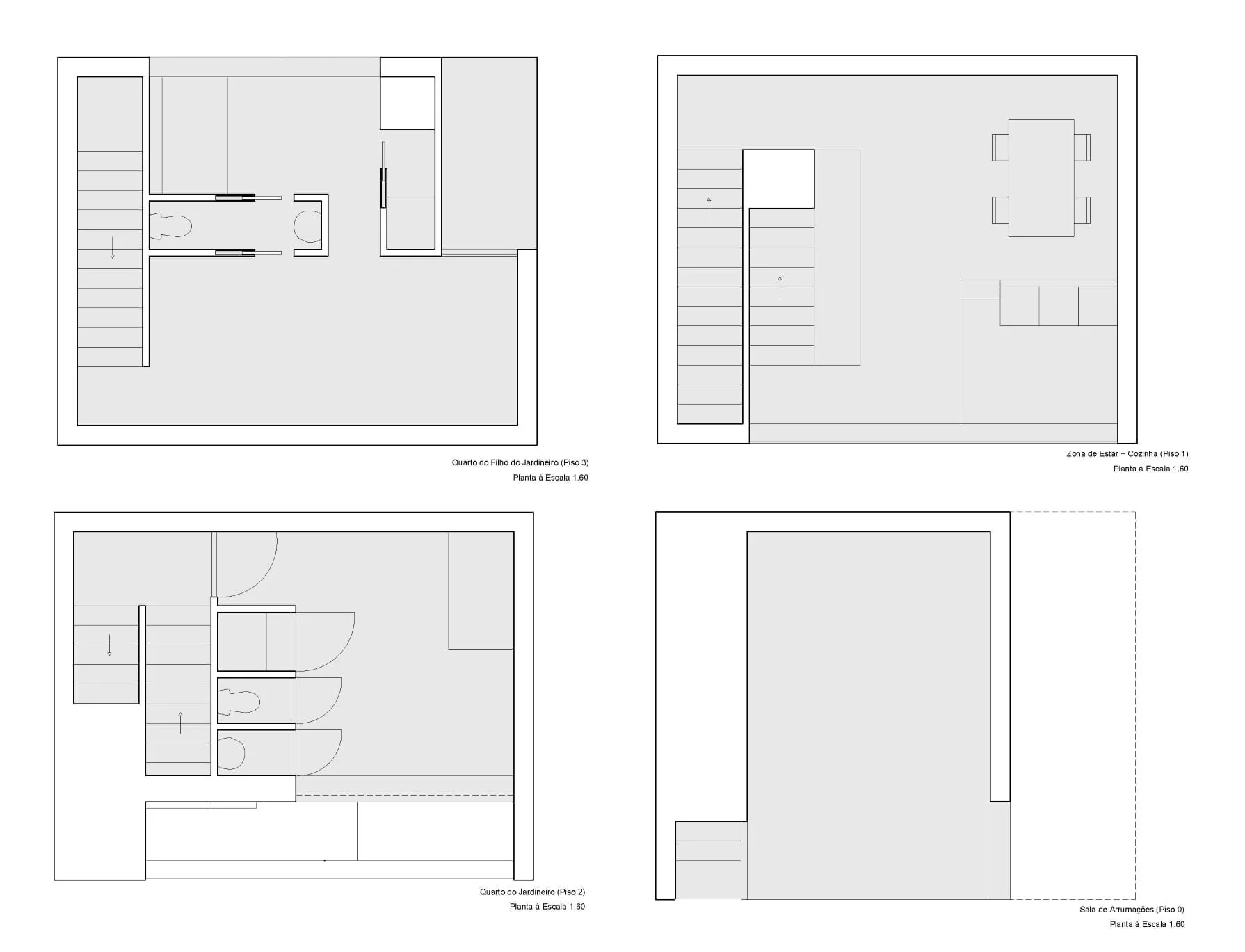
Habitação do Jardineiro
No piso mais baixo como anteriormente referido se encontra o armazem de jardinagem. Quando se vai subindo depara-se com a cozinha e sala de forma conjunta mas que de uma diferença ligeira do pé-direito provém sensações diferentes e que resulta de um maior conforto quando se encontra na sala. No piso superior encontra-se o quarto do jardineiro em que o próprio espaço se retrai ligeiramente de forma a possibilitar ao jardineiro a visao para a sala (como controlar o seu filho). Por fim encontra-se no último piso o quarto do filho do jardineiro. O seu quarto é cria dois espaços diferentes através do posicionamento das casas de banho de forma a tornar o lugar da cama mais acolhedor e de forma a criar um espaço mais amplo para as diferentes tarefas do filho.